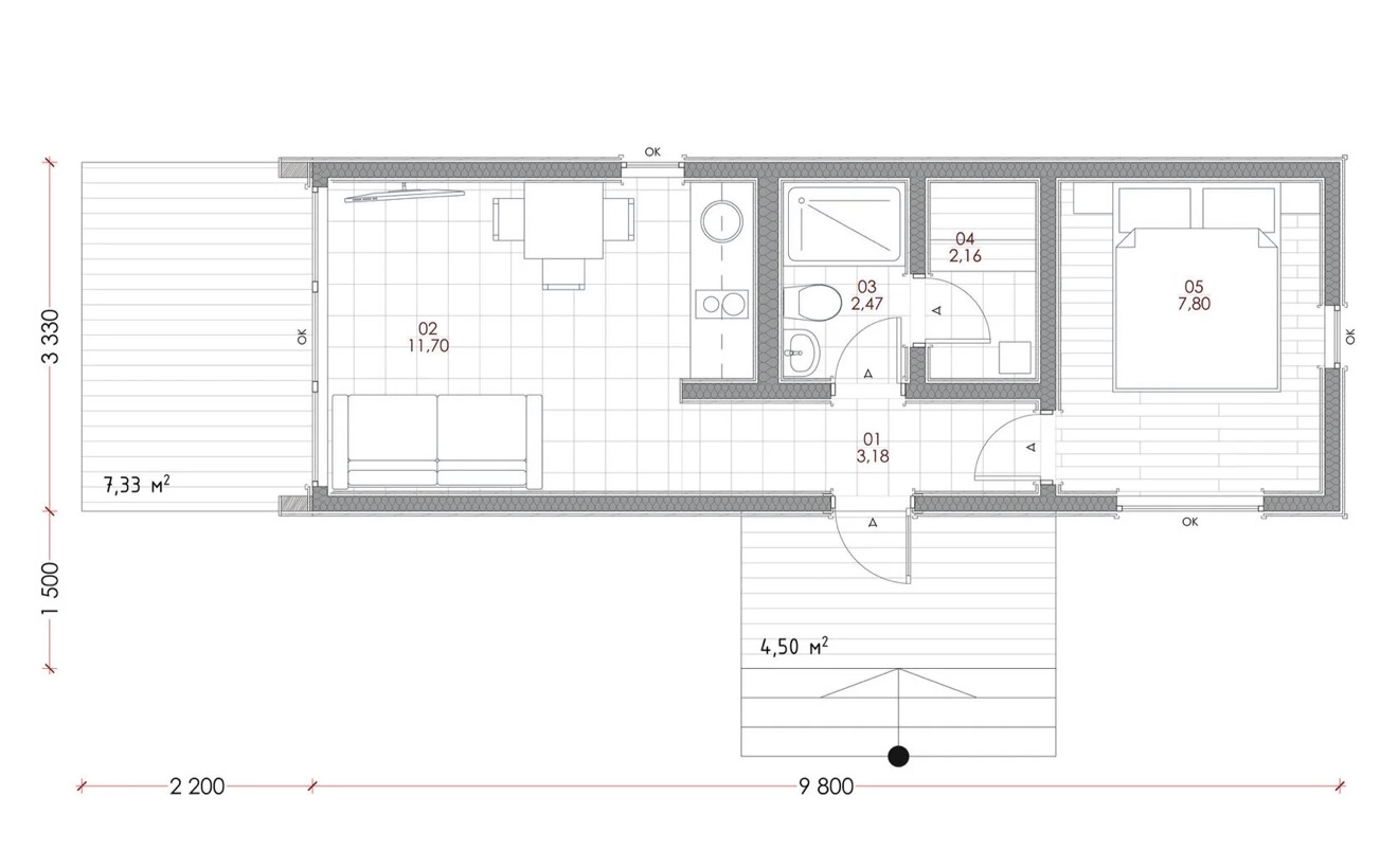
Модульный дом | Box 39-01 с сауной

Серия BOX · 39 м²

  • Общая площадь 39 м²

Модульный дом 39 м2 для отдыха: современный, стильный и готовый к заселению!

MAX