Модульный дом | Optima 77-01

Серия OPTIMA · 90 м²

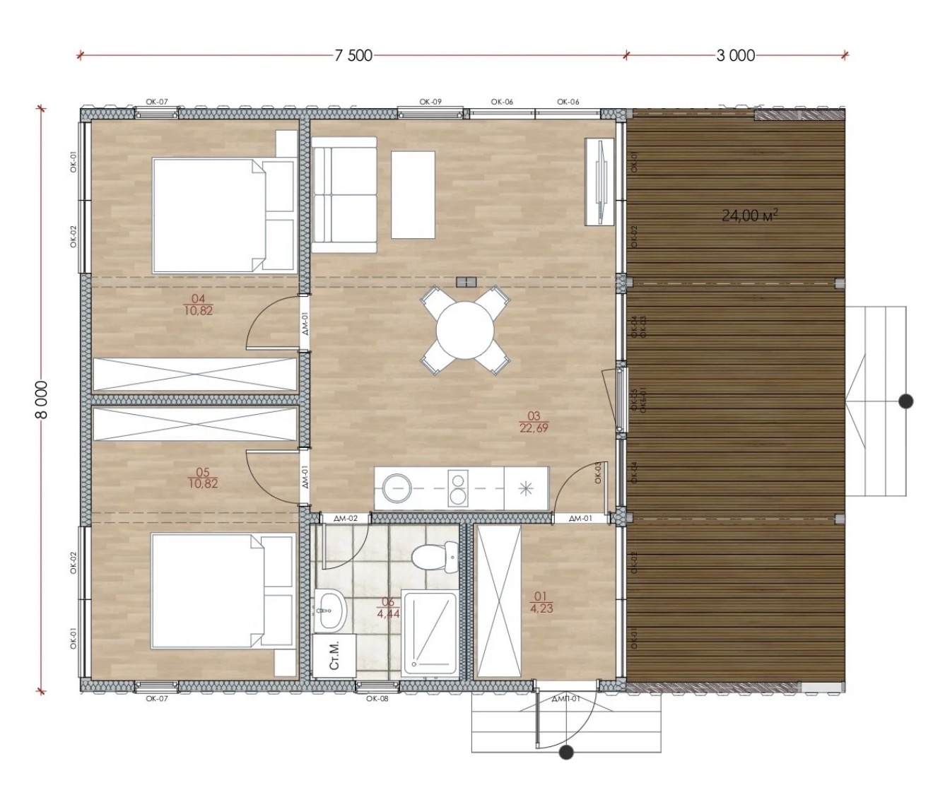
  • Общая площадь 90 м²

Модульный дом вашей мечты с большой террасой уже ждёт вас. Его современный стиль и площадь 90 м² подарят вам комфорт, а фасадное остекление создаст уютную атмосферу. Этот дом полностью готов к заселению.

MAX